We have recently completed a full re-design and fit-out of plant offices for Irish Distillers Midleton, Co Cork facility. These office plays a critical function in the operation of the Midleton distillery. It acts as a 'brain' ensuring that all of the multiple steps in their production process are monitored and adhered to at all times.
The existing 1970's modular structure was retained and our design team looked to examine how the aesthetic look and functional performance of the building could be improved.
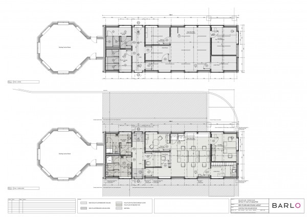
A new general arrangement layout was designed which included creating a mixed approach of open plan and office spaces. A meeting room, locker room, kitchen and bathrooms were added together with a work permit office for contractors and staff. Our design called for a new external Kingspan wall panel system to be installed over the existing concrete non-insulated facade to deliver a superior thermal performance. New floor, walls, ceilings and windows were called for in the design.

The M&E refurbishment, delivered through our partner Derham McPhillips Consulting Engineers, included the upgrade of all electrical equipment including lighting, general service sockets, fire alarm system and power to mechanical services. The new mechanical system provided a new Zehnder heat recovery ventilation system to ensure C0 levels were maintained in the office spaces. We partnered this MHVR system with Mitsubishi air conditioning units with NanoX technology, which purifies the air.
PSDP services were delivered through our partner SCD Consulting.
Our design solution is rooted in simplicity and practicality, ensuring that the functional needs of the building were retained while ensuring that a new brighter and more comfortable work environment was created.